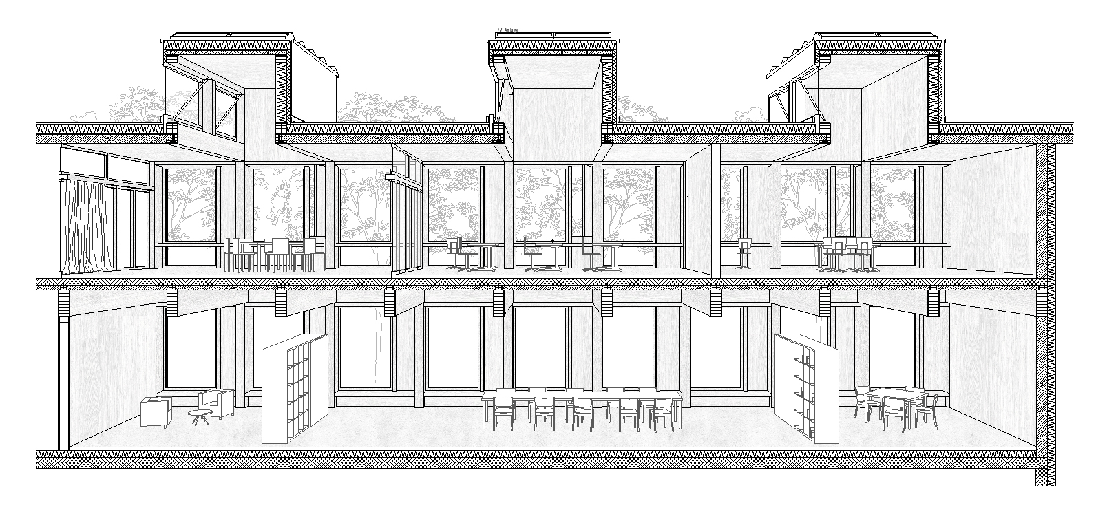
Das heutige Schulhaus Dohlenzelg soll rückgebaut und mit einem Neubau ersetzt werden. Es werden neue Räume für die Primarschule mit Kindergarten und für eine Doppelturnhalle entstehen. Mit einem Planerwahlverfahren sollte ein geeignetes Generalplanerteam evaluiert werden.
Liechti Graf Zumsteg Architekten aus Brugg gewinnen das Verfahren. Sie schlagen einen grossen, zweigeschossigen Längsbau vor, der sich gut in das Gesamtensemble des Schulcampus Dohlenzelg einfügt und den Bezug zum angrenzenden Wohnquartier überzeugend schafft.